Agenzia Mondo Casa

call 04641982038 location_on Piazza Rosmini, 4 Rovereto (Trentino-Alto Adige) mail info@mondocasa.biz

Locale commerciale a Rovereto

location_on Via Vittorio Veneto 9/B - Rovereto (Trentino-Alto Adige)

€ 220.000


Riferimento: NT128

Dettagli

Tipologia: Locale commerciale
Tipo contratto:
Vendita
Città: Rovereto
Indirizzo: Via Vittorio Veneto 9/B
Locali: 1
Superficie: 140
Camere: 0
Anno: -
Bagni: -
Stato immobile: Buono
Piano: 0

Descrizione

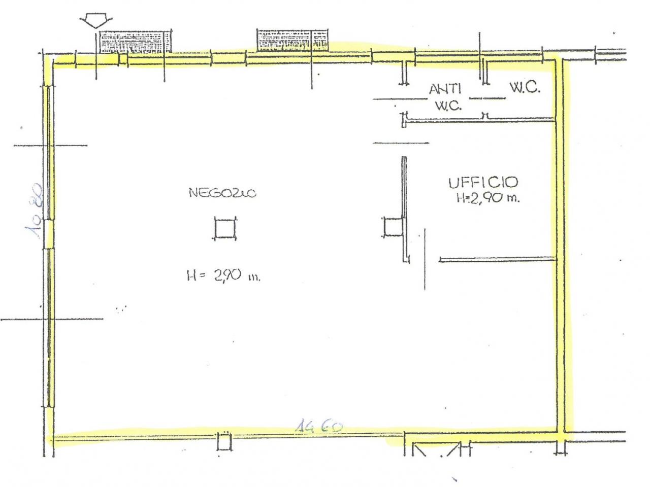
In zona Sacra Famiglia proponiamo in vendita una luminosa superficie commerciale vetrinata di circa 140 mq, situata al piano terra e dotata di bagno e antibagno. L’immobile si trova in posizione strategica, con ottima visibilità e comodo accesso. Ideale sia per attività che cercano una location funzionale, sia per chi desidera investire: l’unità è infatti già locata con contratto 6+6. Per ulteriori informazioni contattaci. Rif. NT128

Planimetrie

Localizzazione

Recensioni

Scrivi la tua recensione

Voto:

Affidaci l'incarico e ci penseremo noi.

call

CHIAMACI ORA

L'immobile è stato aggiunto ai preferiti.
arrow_upward