Agenzia Mondo Casa

call 04641982038 location_on Piazza Rosmini, 4 Rovereto (Trentino-Alto Adige) mail info@mondocasa.biz

Terreno edificabile a Mori

location_on Via Giovanni XXIII - Mori (Trentino-Alto Adige)

€ 330.000


Riferimento: V131

Dettagli

Tipologia: Terreno edificabile
Tipo contratto:
Vendita
Città: Mori
Indirizzo: Via Giovanni XXIII
Locali: -
Superficie: 544
Camere: -
Anno: -
Bagni: -
Stato immobile: -
Piano: -

Descrizione

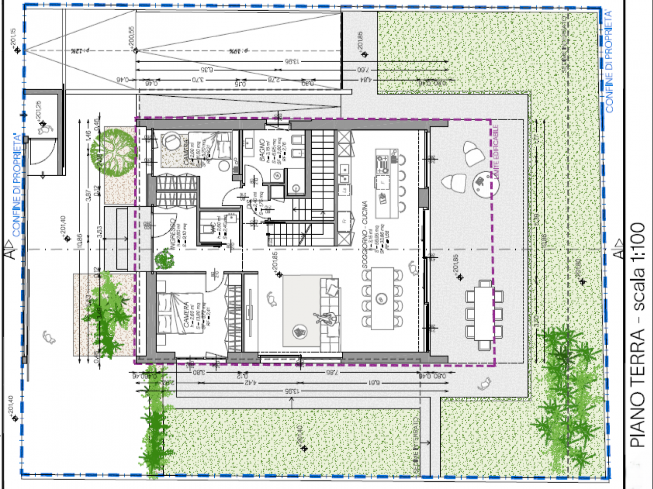
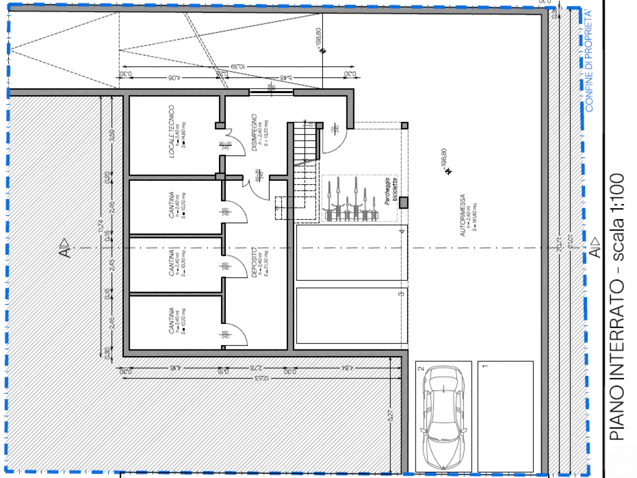
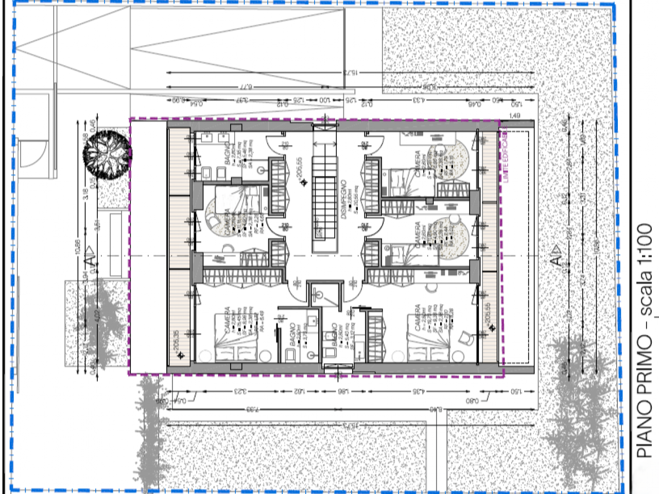
Cerchi la tua casa a Mori e non trovi nulla di adatto a te? Questa potrebbe essere la tua soluzione: Mondo Casa propone in vendita esclusiva terreno edificabile, in zona tranquilla e vicina ad ogni servizio. Progettazione già approvata con possibilità di realizzazione di una casetta con 2 appartamenti da circa 100 mq a piano e con oneri d'urbanizzazione già pagati, pronta per iniziare i lavori! Chiama in ufficio per ulteriori informazioni. Rif. V131

Planimetrie

Localizzazione

Recensioni

Scrivi la tua recensione

Voto:

Affidaci l'incarico e ci penseremo noi.

call

CHIAMACI ORA

L'immobile è stato aggiunto ai preferiti.
arrow_upward