Agenzia Mondo Casa

call 04641982038 location_on Piazza Rosmini, 4 Rovereto (Trentino-Alto Adige) mail info@mondocasa.biz

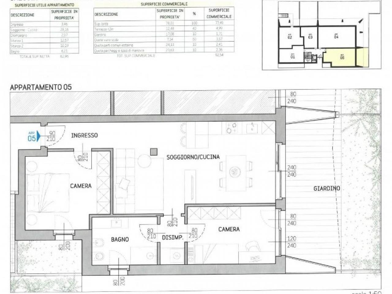
3 locali a Rovereto

location_on Via San Giorgio - Rovereto (Trentino-Alto Adige)

€ 355.000


Riferimento: V784 05

Dettagli

Tipologia: 3 locali
Tipo contratto:
Vendita
Città: Rovereto
Indirizzo: Via San Giorgio
Locali: 3
Superficie: 93
Camere: 2
Anno: 2024
Bagni: 1
Stato immobile: Nuovo
Piano: 0

Descrizione

In tranquilla zona residenziale a San Giorgio, Rovereto, proponiamo in vendita un appartamento a piano terra all’interno di una moderna palazzina di nuova costruzione, realizzata con materiali di qualità e particolare attenzione al risparmio energetico. L’immobile si compone di un ingresso, una luminosa zona giorno con cucina a vista, due camere da letto e un bagno finestrato con finiture moderne. Completa la proprietà un giardino privato, ideale per rilassarsi all’aperto, pranzare in compagnia o dedicarsi al verde. È possibile usufruire di agevolazioni fiscali legate all’acquisto. Garage disponibile separatamente, per chi desidera maggiore comodità. Una soluzione ideale per chi cerca funzionalità, spazi esterni esclusivi e un contesto abitativo moderno. Contattaci per maggiori informazioni o per fissare una visita! Rif. v784

Planimetrie

Localizzazione

Recensioni

Scrivi la tua recensione

Voto:

Affidaci l'incarico e ci penseremo noi.

call

CHIAMACI ORA

L'immobile è stato aggiunto ai preferiti.
arrow_upward