Agenzia Mondo Casa

call 04641982038 location_on Piazza Rosmini, 4 Rovereto (Trentino-Alto Adige) mail info@mondocasa.biz

2 locali a Rovereto

location_on Via Monte Grappa, 5 - Rovereto (Trentino-Alto Adige)

€ 270.000


Riferimento: v941 APP. 21

Dettagli

Tipologia: 2 locali
Tipo contratto:
Vendita
Città: Rovereto
Indirizzo: Via Monte Grappa, 5
Locali: 2
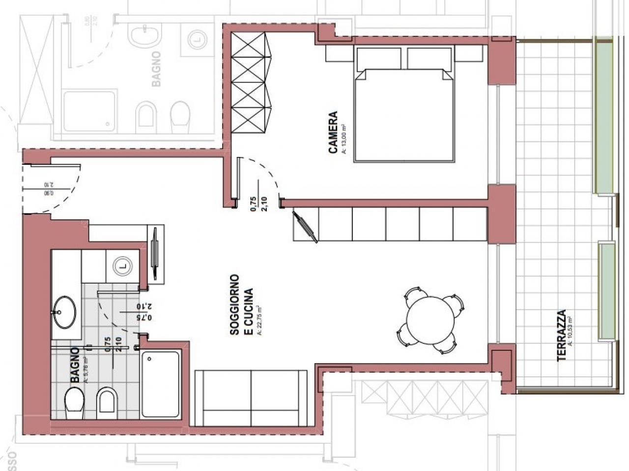
Superficie: 60
Camere: 1
Anno: 2024
Bagni: 1
Stato immobile: Nuovo
Piano: 3

Descrizione

Mondo Casa propone in vendita elegante miniappartamento al terzo piano con terrazzo privato, situato in una nuova costruzione in zona centralissima e servita. L’immobile si distingue per il design moderno, l’alta efficienza energetica e il comfort abitativo. È prevista un’agevolazione fiscale, ottima opportunità anche per investimento. Possibilità di acquistare a parte cantina, box auto singolo o doppio. Per maggiori informazioni e per fissare una visita, contattaci. Rif. V941 App.21

Planimetrie

Localizzazione

Recensioni

Scrivi la tua recensione

Voto:

Affidaci l'incarico e ci penseremo noi.

call

CHIAMACI ORA

L'immobile è stato aggiunto ai preferiti.
arrow_upward