Agenzia Mondo Casa

call 04641982038 location_on Piazza Rosmini, 4 Rovereto (Trentino-Alto Adige) mail info@mondocasa.biz

3 locali a Mori

location_on Via del Garda, 99 - Mori (Trentino-Alto Adige)

€ 275.000


Riferimento: D4

Dettagli

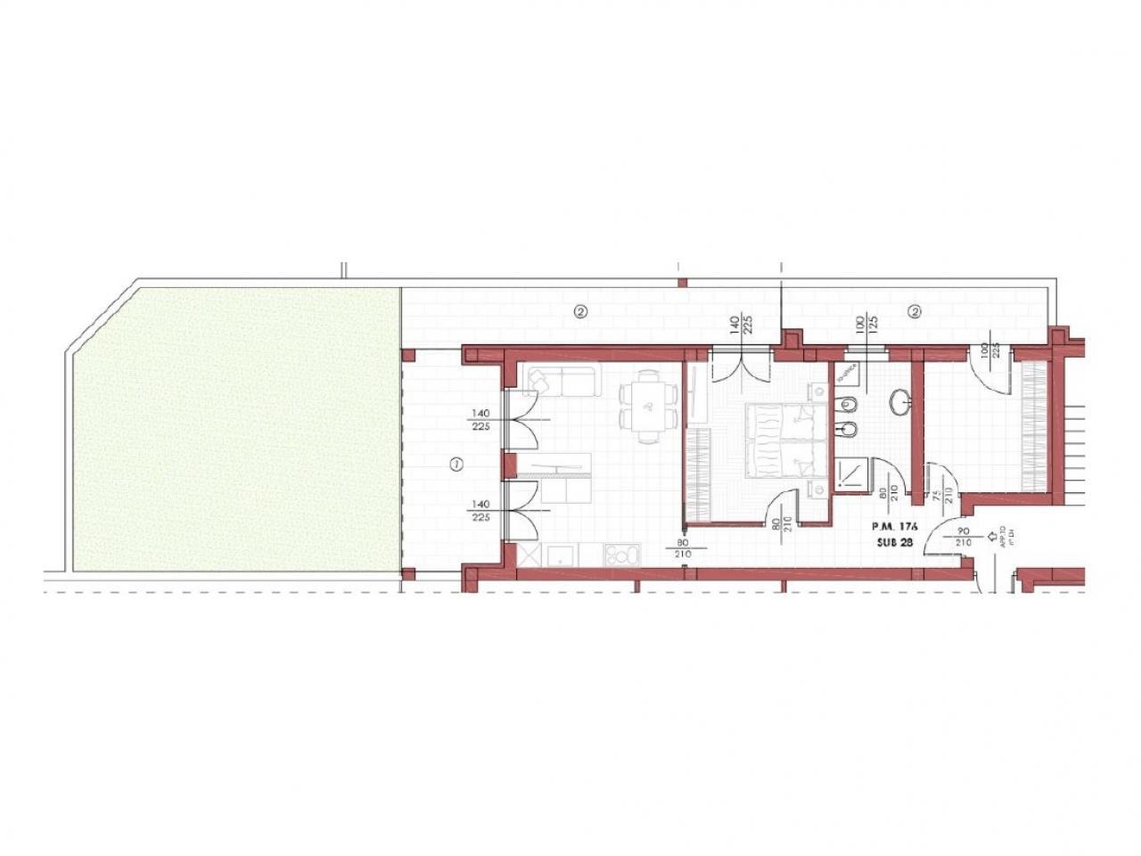
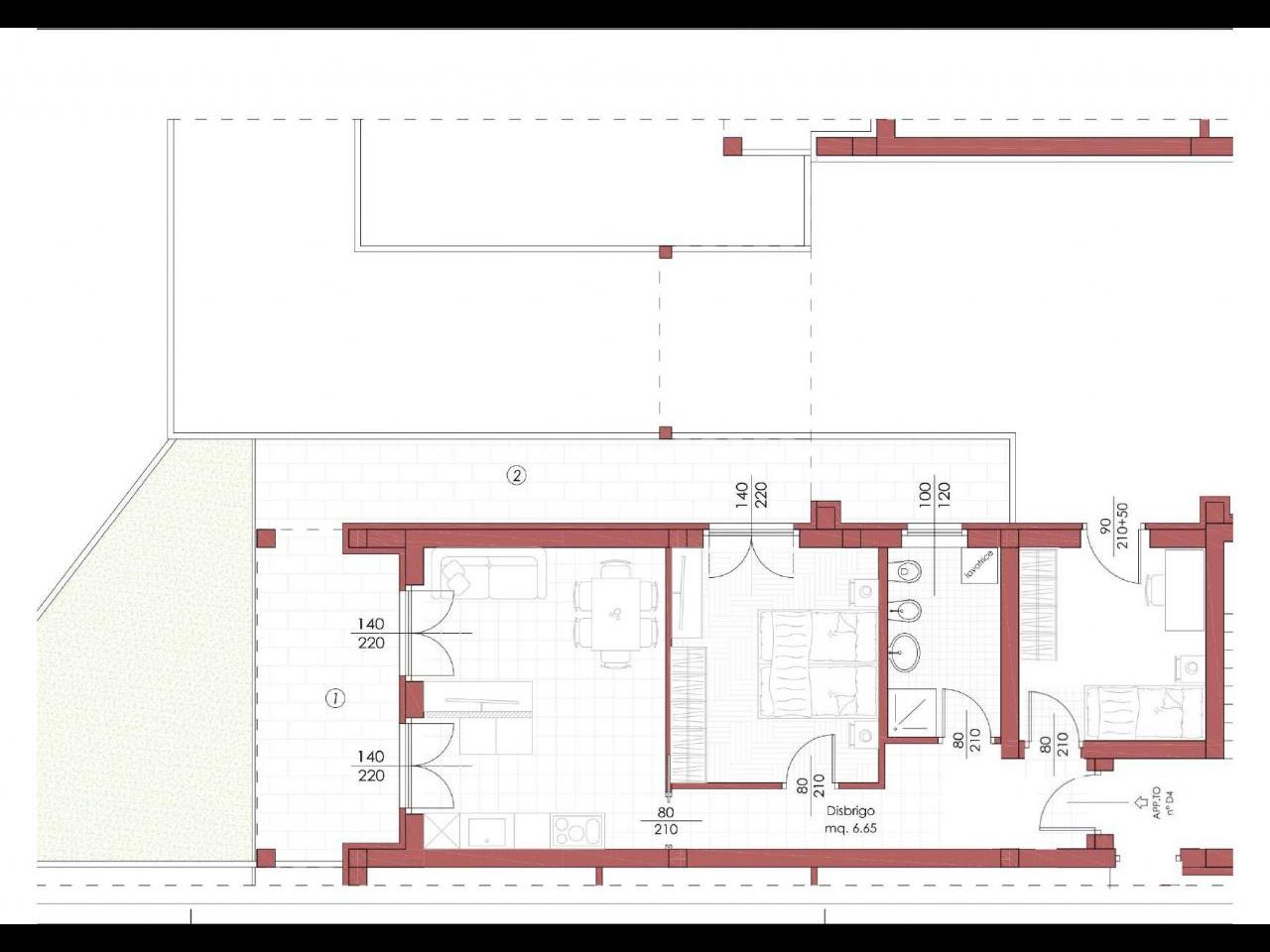
Tipologia: 3 locali
Tipo contratto:
Vendita
Città: Mori
Indirizzo: Via del Garda, 99
Locali: 3
Superficie: 85
Camere: 2
Anno: 2025
Bagni: 1
Stato immobile: In costruzione
Piano: 0

Ambienti

check Giardino

Caratteristiche

check Doccia
check Impianto telefonico
check Sanitari sospesi
check Tapparelle
check Antenna TV condominiale
check TV SAT condominiale
check Impianto elettrico a norma

Descrizione

Benvenuto al Residence Via del Garda! Situato a pochi passi dal centro di Mori, in una tranquilla ed esclusiva cornice, il Residence Via del Garda è pronto ad accoglierti. In particolare, l'appartamento D4, è un comodo trilocale al piano terra , composto da ingresso, soggiorno con angolo cottura e giardino, 2 camere da letto e bagno. Ideale per chi ama vivere all'aria aperta. Eleganza e Modernità. Il complesso prende il nome dalla via che lo collega al centro del comune ed è composto da sei palazzine residenziali eleganti, moderne e funzionalmente indipendenti. Qualità e comfort. Progettato per rispondere alle esigenze abitative del territorio, il Residence Via del Garda offre ambienti moderni ed efficienti, mantenendo un alto standard di qualità. I materiali utilizzati e le tecniche costruttive impiegate sono di prima scelta, garanzia di solidità e massimo comfort. Caratteristiche tecniche: Murature in laterizio porizzato termo-blocco Poroton da 30 cm per una perfetta isolazione termica; Cappotto termico in EPS GRAFITE per un'efficace protezione dagli agenti atmosferici; Serramenti in PVC con triplo vetro per un perfetto isolamento termico e acustico; Tapparelle in alluminio per la massima sicurezza; Impianto di riscaldamento e raffrescamento con pompa di calore per un clima sempre confortevole; Impianto di deumidificazione e ventilazione meccanica controllata (VMC) per un'aria sempre fresca e pulita; Impianto fotovoltaico centralizzato per una riduzione dei costi energetici; Pavimenti e rivestimenti in grès porcellanato di prima scelta e rettificato per un look moderno senza rinunciare alla durevolezza. Vivi Mori al Meglio. Mori è una piccola perla tra Rovereto e Riva del Garda, con la sua bellezza paesaggistica e il suo ricco patrimonio storico. Le manifestazioni culturali e sportive rendono questa cittadina vibrante e piena di vita, mentre la sua posizione strategica la rende un importante centro produttivo con ottimi collegamenti sia con Trento che con Verona. Vieni a scoprire il Residence Via del Garda, dove qualità, comfort e bellezza si incontrano per offrirti la tua nuova casa! Rif. D4

Planimetrie

Localizzazione

Recensioni

Scrivi la tua recensione

Voto:

Affidaci l'incarico e ci penseremo noi.

call

CHIAMACI ORA

L'immobile è stato aggiunto ai preferiti.
arrow_upward