Agenzia Mondo Casa

call 04641982038 location_on Piazza Rosmini, 4 Rovereto (Trentino-Alto Adige) mail info@mondocasa.biz

Casa singola a Rovereto

location_on Via Saline, 42 - Rovereto (Trentino-Alto Adige)

€ 330.000


Riferimento: V1023

Dettagli

Tipologia: Casa singola
Tipo contratto:
Vendita
Città: Rovereto
Indirizzo: Via Saline, 42
Locali: 6
Superficie: 210
Camere: 4
Anno: -
Bagni: 2
Stato immobile: Abitabile
Piano: -

Ambienti

check Balconi
check Terrazzo
check Box
check Cantina
check Soffitta

Descrizione

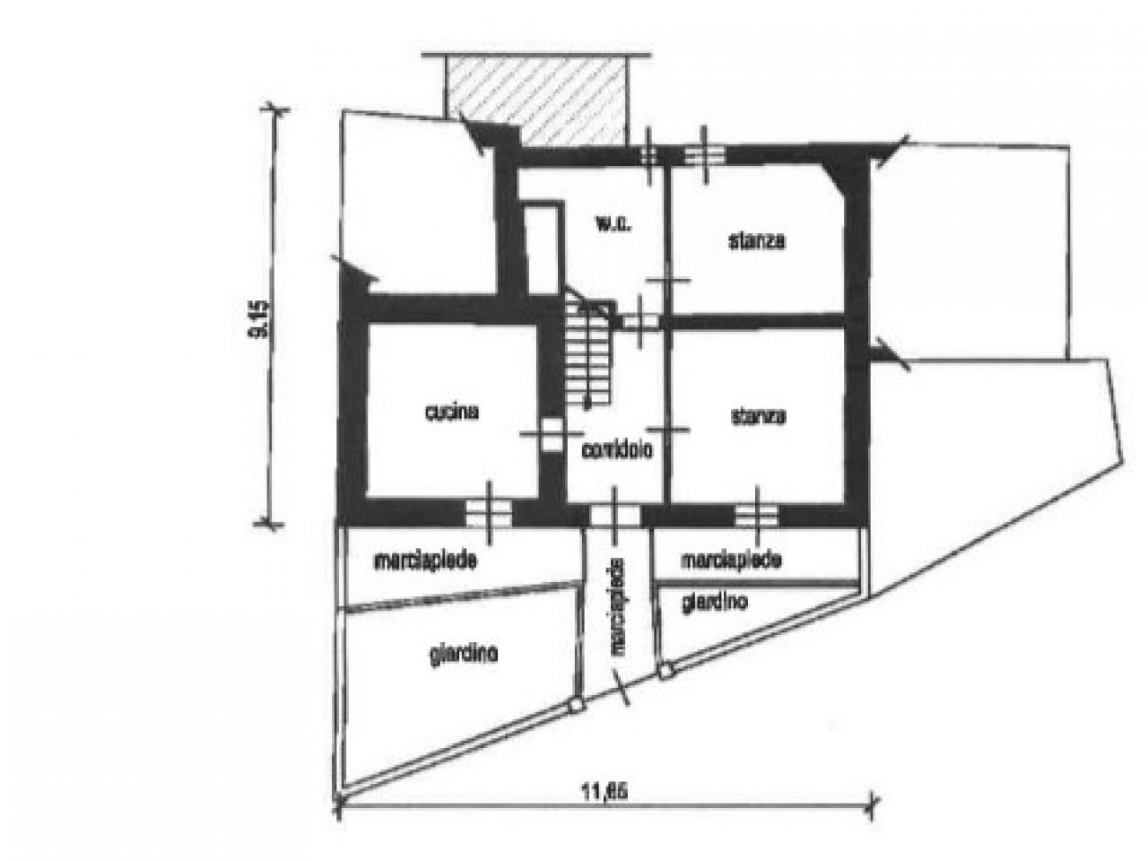
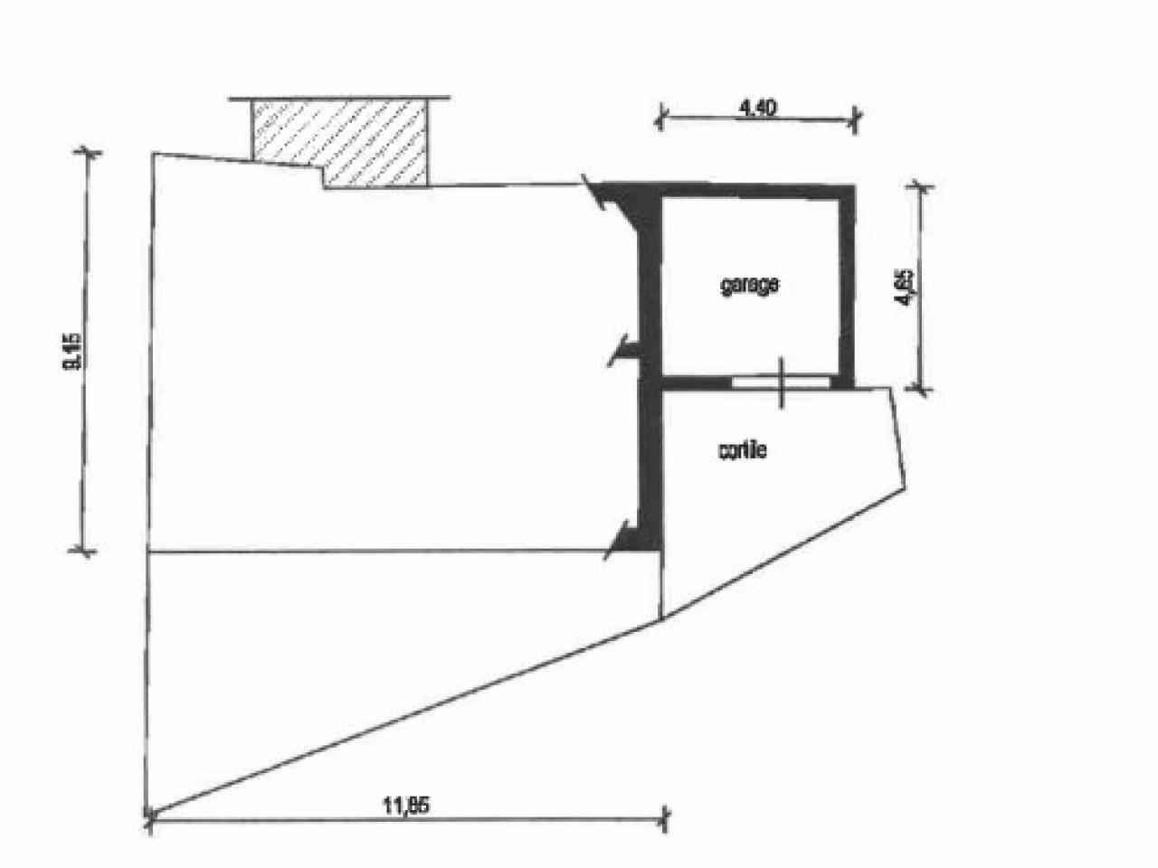
Mondo Casa propone in vendita una casa singola situata nella tranquilla e ben servita località di Marco di Rovereto. L’immobile, libero su quattro lati, offre spazi generosi e una buona esposizione, ideale per chi desidera indipendenza e tranquillità senza rinunciare alla comodità dei servizi. La proprietà dispone di un cortile esterno di proprietà, con accesso diretto alla casa. Entrando nell’abitazione principale ci accoglie un ingresso funzionale, un ampio soggiorno, una cucina separata abitabile, una stanza e un bagno finestrato. Al primo piano si sviluppa la zona notte, composta da tre camere da letto: una dotata di balcone e un’altra arricchita da un meraviglioso terrazzo ben esposto, ideale per momenti di relax all’aperto. Sempre al primo piano è presente un secondo bagno finestrato. All’ultimo piano si trova una grande soffitta, perfetta come spazio aggiuntivo da utilizzare o personalizzare secondo le proprie esigenze. Di pertinenza un comodo garage e un'ampia cantina. L’immobile è abitabile da subito, ma necessita di alcuni lavori di sistemazione. Rappresenta una soluzione ideale per chi cerca una casa indipendente con ampi spazi e desidera creare un’abitazione su misura per la propria famiglia. Per ulteriori informazioni o per fissare una visita, siamo a disposizione. Rif. V1023

Planimetrie

Localizzazione

Recensioni

Scrivi la tua recensione

Voto:

Affidaci l'incarico e ci penseremo noi.

call

CHIAMACI ORA

L'immobile è stato aggiunto ai preferiti.
arrow_upward