Agenzia Mondo Casa

call 04641982038 location_on Piazza Rosmini, 4 Rovereto (Trentino-Alto Adige) mail info@mondocasa.biz

3 locali a Rovereto

location_on Via Mercerie, 49 - Rovereto (Trentino-Alto Adige)

€ 299.000


Riferimento: V1073

Dettagli

Tipologia: 3 locali
Tipo contratto:
Vendita
Città: Rovereto
Indirizzo: Via Mercerie, 49
Locali: 3
Superficie: 110
Camere: 3
Anno: 1900
Bagni: 2
Stato immobile: Ottimo
Piano: 3

Ambienti

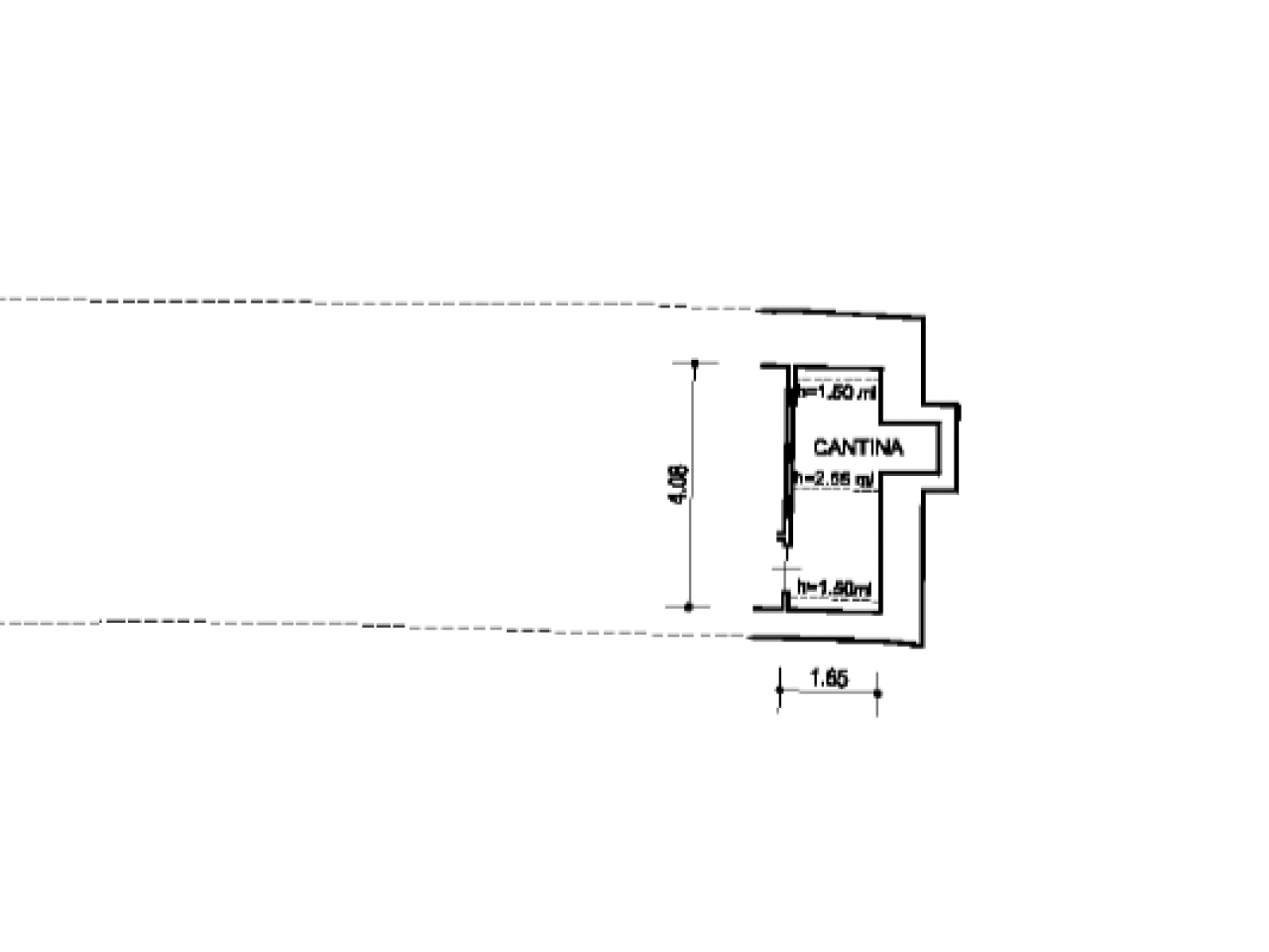
check Cantina

Caratteristiche

check Aria condizionata
check Doccia
check Ripostiglio
check Sanitari sospesi
check Impianto elettrico a norma

Descrizione

Nel pieno centro di Rovereto, in una posizione strategica e comoda a tutti i servizi, proponiamo in vendita un incantevole attico disposto su due livelli, collocato al terzo piano di un elegante stabile d’epoca, curato nei dettagli architettonici e servito da ascensore. Si tratta di una soluzione abitativa rara, capace di unire il fascino senza tempo della struttura originale alla comodità degli spazi modernamente distribuiti, ideale per chi è alla ricerca di un’abitazione di carattere, luminosa e accogliente, nel cuore pulsante della città. L’immobile è stato oggetto di una ristrutturazione che ne ha valorizzato la struttura originaria, mantenendo intatto il suo spirito signorile e rendendolo al contempo funzionale e confortevole per la vita quotidiana. Varcando la soglia, si viene accolti da un ampio salone che rappresenta il cuore della casa: uno spazio conviviale, arioso e ben illuminato, perfetto per accogliere ospiti o semplicemente godersi momenti di relax in famiglia. La cucina, separata e funzionale, consente di vivere la zona giorno con la massima libertà. Sempre sul primo livello, troviamo un comodo bagno di servizio e una camera da letto che può essere adibita anche a studio o stanza per gli ospiti. Salendo al piano superiore, la zona notte si presenta ben organizzata e raccolta, pensata per garantire tranquillità e privacy. Qui troviamo un secondo bagno finestrato, dotato di vasca, una spaziosa camera matrimoniale, una cameretta ideale per bambini o come studio, e un pratico ripostiglio che completa la funzionalità dell’abitazione. L’ottima esposizione garantisce luce naturale durante tutto l’arco della giornata, rendendo ogni ambiente particolarmente piacevole da vivere. La proprietà include inoltre una cantina al piano seminterrato, utile come spazio aggiuntivo per il deposito. Questa proposta rappresenta una perfetta sintesi tra eleganza, comfort e posizione: un attico di grande charme, ideale per chi desidera vivere in centro senza rinunciare alla quiete e alla qualità degli spazi. Un’occasione unica per chi cerca un’abitazione distintiva, pronta da abitare, nel cuore autentico di Rovereto. Per ulteriori informazioni contattaci. Rif. V1073

Planimetrie

Localizzazione

Video

Video 360

Recensioni

Scrivi la tua recensione

Voto:

Affidaci l'incarico e ci penseremo noi.

call

CHIAMACI ORA

L'immobile è stato aggiunto ai preferiti.
arrow_upward