Agenzia Mondo Casa

call 04641982038 location_on Piazza Rosmini, 4 Rovereto (Trentino-Alto Adige) mail info@mondocasa.biz

Casa singola a Mori

location_on Via Teatro, 20 - Mori (Trentino-Alto Adige)

€ 420.000


Riferimento: V1132

Dettagli

Tipologia: Casa singola
Tipo contratto:
Vendita
Città: Mori
Indirizzo: Via Teatro, 20
Locali: 8
Superficie: 530
Camere: 6
Anno: -
Bagni: 2
Stato immobile: Da ristrutturare
Piano: 1
Classe Energetica: 352.11

Ambienti

check Balconi
check Terrazzo
check Giardino
check Terreno
check Box
check Cantina
check Deposito

Descrizione

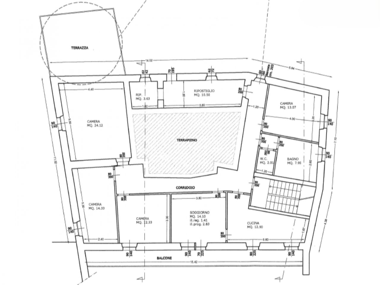
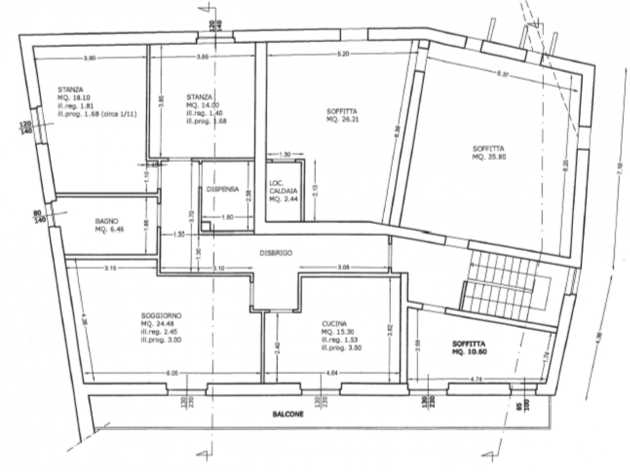
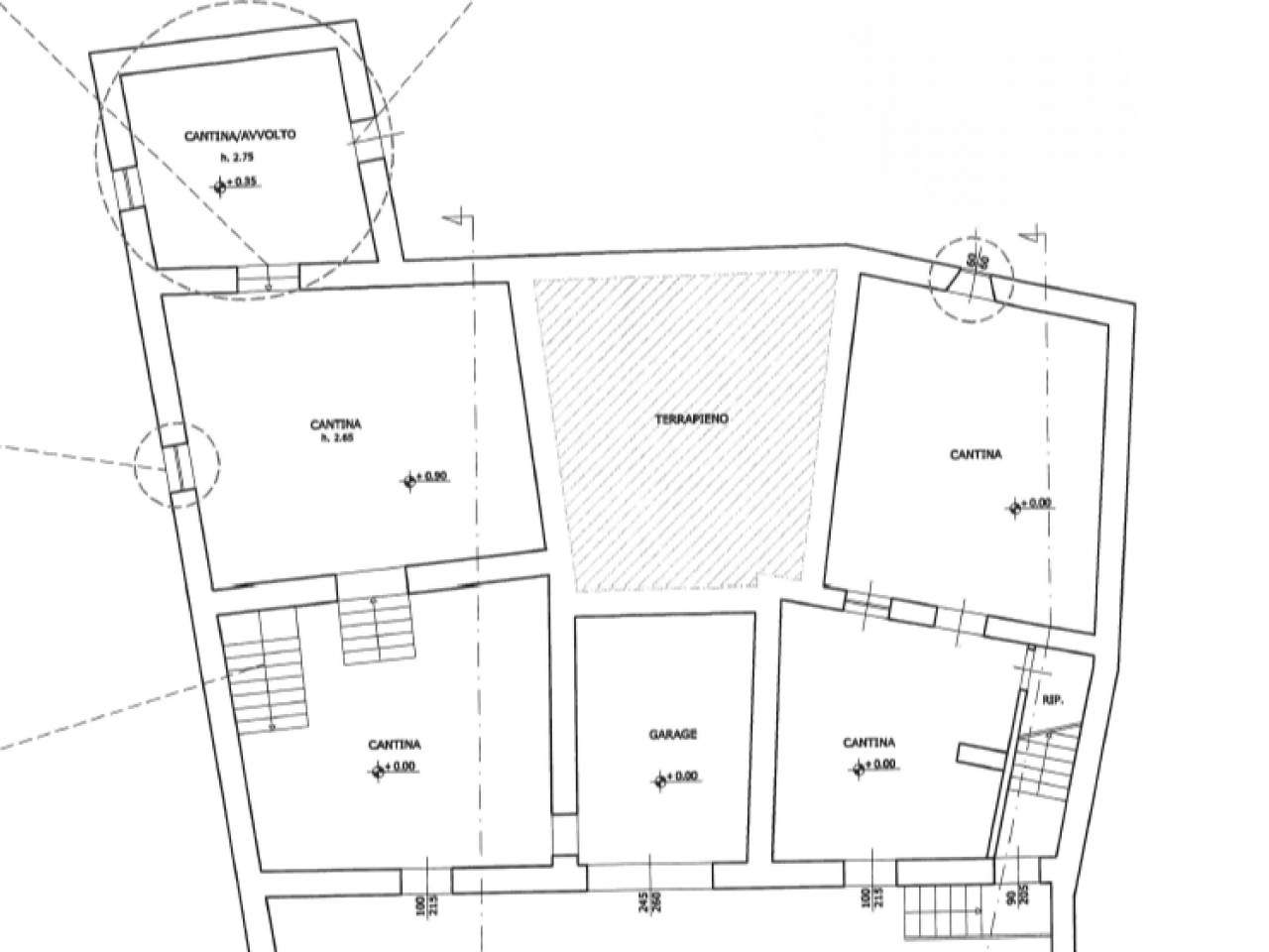
Proponiamo in vendita, nel pieno centro di Mori, una rara opportunità: casa singola di ampie dimensioni, disposta su due livelli e caratterizzata da spazi generosi, affacci luminosi e una serie di pertinenze che la rendono ideale sia per un’unica grande famiglia, sia per chi desidera ricavare due unità abitative indipendenti. La proprietà si completa con un comodo garage, diverse cantine e un orto privato, perfetto per chi desidera un angolo verde da coltivare pur rimanendo vicino ai servizi. Elemento di grande valore aggiunto: davanti alla casa si trova un ampio spazio di proprietà esclusiva, che consente di parcheggiare comodamente più automobili all’esterno. Il primo piano, di circa 270 mq, accoglie una zona giorno ampia e ben distribuita, con cucina e soggiorno separati che si affacciano su un grande balcone panoramico, ideale per godersi momenti di relax all’aria aperta. La zona notte comprende quattro camere spaziose che offrono molteplici possibilità di utilizzo, accompagnate da un antibagno, un bagno e un pratico ripostiglio. Dal piano si accede inoltre a un terrazzino esterno che conduce direttamente all’orto di proprietà, un valore aggiunto per chi apprezza gli spazi esterni riservati e facilmente fruibili. Salendo al piano superiore si sviluppa il secondo appartamento, di circa 220 mq, anch’esso dotato di ambienti molto ariosi. La cucina è funzionale e luminosa, mentre il soggiorno, anch’esso con affaccio su un ampio balcone, permette di godere di una splendida vista aperta. Le due camere da letto, il bagno e il ripostiglio completano il piano, offrendo una distribuzione ideale per una seconda unità abitativa o per ampliare ulteriormente lo spazio della casa. A questo livello si trova anche una grande mansarda, attualmente allo stato grezzo, che può essere personalizzata e trasformata in studio, sala hobby, ulteriori camere o qualsiasi altra soluzione si adatti alle esigenze future. L’immobile si presenta da ristrutturare, elemento che consente di modellare gli ambienti secondo il proprio gusto e le proprie necessità, valorizzando al massimo le ampie metrature e la posizione strategica. La vista panoramica che si gode da più punti della casa conferisce un ulteriore pregio alla proprietà, rendendola una soluzione unica nel suo genere. Perfetta per chi cerca una casa indipendente con spazi generosi, potenzialità di personalizzazione e la comodità di tutti i principali servizi raggiungibili a piedi, questa abitazione rappresenta un’occasione imperdibile per vivere al meglio il centro di Mori senza rinunciare alla tranquillità e alla funzionalità di una vera casa singola. Per ulteriori informazioni contattaci. Rif. V1132

Planimetrie

Localizzazione

Video

Video 360

Recensioni

Scrivi la tua recensione

Voto:

Affidaci l'incarico e ci penseremo noi.

call

CHIAMACI ORA

L'immobile è stato aggiunto ai preferiti.
arrow_upward