Agenzia Mondo Casa

call 04641982038 location_on Piazza Rosmini, 4 Rovereto (Trentino-Alto Adige) mail info@mondocasa.biz

3 locali a Volano

location_on Via Tei, 1 - Volano (Trentino-Alto Adige)

€ 145.000


Riferimento: V1166

Dettagli

Tipologia: 3 locali
Tipo contratto:
Vendita
Città: Volano
Indirizzo: Via Tei, 1
Locali: 3
Superficie: 58
Camere: 2
Anno: 1990
Bagni: 1
Stato immobile: Ottimo
Piano: 2
Classe Energetica: 100

Descrizione

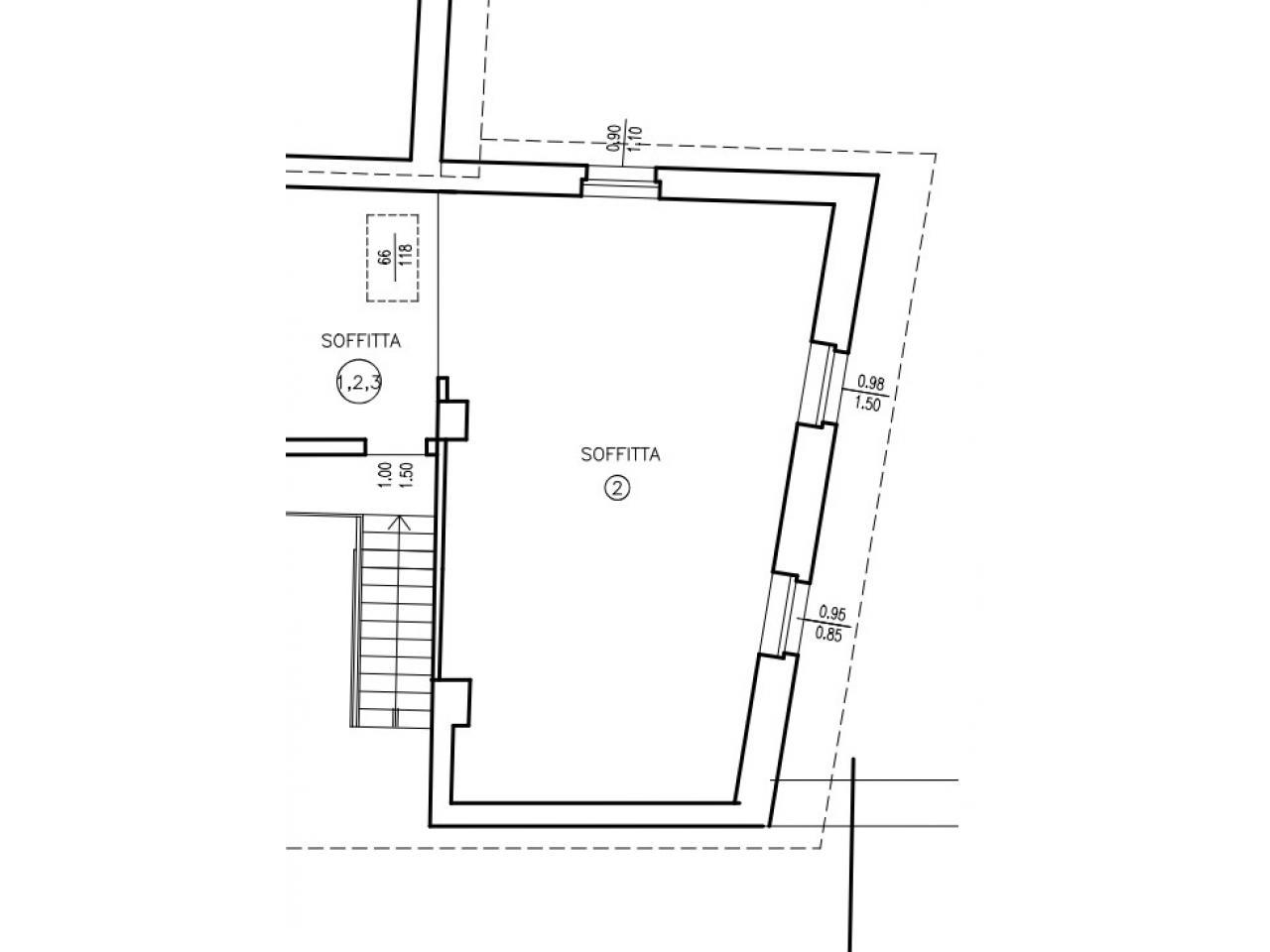
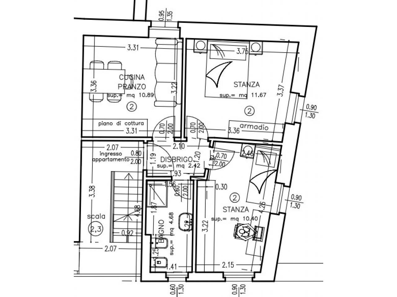
Nel pieno centro di Volano (TN) proponiamo in vendita porzione di casa terra-cielo, inserita in una corte interna riservata con sole tre unità abitative, soluzione ideale per chi cerca indipendenza, tranquillità e comodità ai servizi. L’immobile si sviluppa su più livelli ed è così composto: Piano terra: posto auto all’interno della corte, portico con possibilità di realizzare un box auto e cantina; Piano primo: disbrigo, cucina/pranzo, due camere da letto, bagno finestrato; Piano sottotetto: soffitta con possibilità di recupero a spazio abitabile, ideale per creare una terza camera, uno studio o una zona hobby. Grazie alla configurazione terra-cielo, agli spazi accessori e alla possibilità di ampliamento, questa porzione di casa rappresenta una soluzione ideale come prima casa per famiglie, ma anche come investimento immobiliare a Volano, in una zona centrale e ben servita. Rif. V1166

Planimetrie

Localizzazione

Recensioni

Scrivi la tua recensione

Voto:

Affidaci l'incarico e ci penseremo noi.

call

CHIAMACI ORA

L'immobile è stato aggiunto ai preferiti.
arrow_upward