Agenzia Mondo Casa

call 04641982038 location_on Piazza Rosmini, 4 Rovereto (Trentino-Alto Adige) mail info@mondocasa.biz

Locale commerciale a Trento

location_on Via Galileo Galilei, 11 - Trento (Trentino-Alto Adige)

€ 230.000


Riferimento: V1190

Dettagli

Tipologia: Locale commerciale
Tipo contratto:
Vendita
Città: Trento
Indirizzo: Via Galileo Galilei, 11
Locali: -
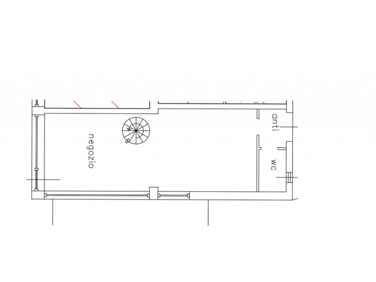
Superficie: 55
Camere: -
Anno: -
Bagni: -
Stato immobile: Buono
Piano: -

Descrizione

Nel cuore del centro storico di Trento, Mondo Casa propone in vendita ampio e luminoso locale commerciale con vetrina fronte strada, situato in zona di forte passaggio e ottima visibilità. L’immobile si sviluppa su un unico livello ed è caratterizzato da spazi interni molto ampi e versatili, facilmente adattabili a diverse tipologie di attività commerciali o professionali. Completano la proprietà servizio igienico e spogliatoio, garantendo funzionalità e comfort. Soluzione ideale per chi desidera investire o avviare un’attività in una delle zone più richieste della città. Per maggiori informazioni: Rif. V1190

Planimetrie

Localizzazione

Recensioni

Scrivi la tua recensione

Voto:

Affidaci l'incarico e ci penseremo noi.

call

CHIAMACI ORA

L'immobile è stato aggiunto ai preferiti.
arrow_upward