Agenzia Mondo Casa

call 04641982038 location_on Piazza Rosmini, 4 Rovereto (Trentino-Alto Adige) mail info@mondocasa.biz

Locale commerciale a Trento

location_on Via Galileo Galilei, 11 - Trento (Trentino-Alto Adige)

€ 500.000


Riferimento: V1191

Dettagli

Tipologia: Locale commerciale
Tipo contratto:
Vendita
Città: Trento
Indirizzo: Via Galileo Galilei, 11
Locali: -
Superficie: 120
Camere: -
Anno: -
Bagni: -
Stato immobile: Buono
Piano: -

Descrizione

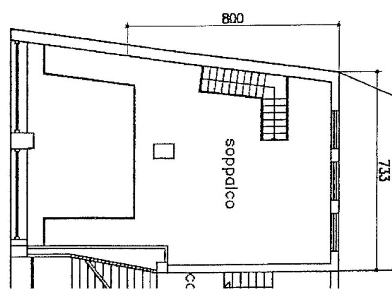
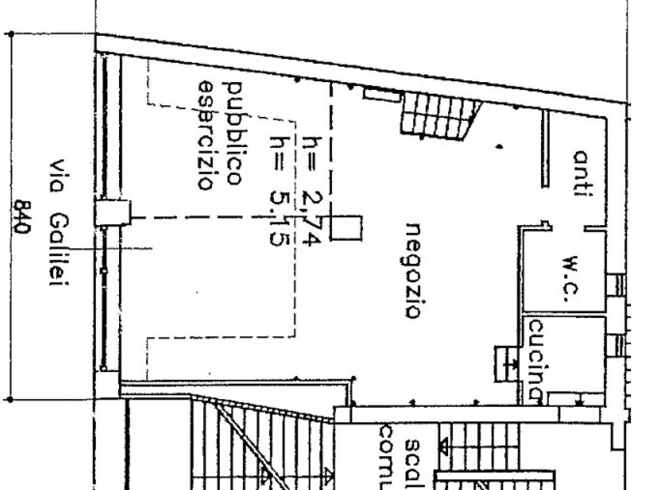
In zona di forte passaggio e ottima visibilità, Mondo Casa propone in vendita ampio locale commerciale con doppia vetrina fronte strada. L’immobile si distingue per le generose metrature e per la presenza di un soppalco, che rende gli spazi ancora più funzionali e versatili. La proprietà è completa di bagno, spogliatoio, cucinino e magazzino, elementi che la rendono adatta a diverse tipologie di attività commerciali o professionali. Ottima opportunità per chi cerca una soluzione di prestigio e visibilità in una delle zone più dinamiche di Trento. Per maggiori informazioni: Rif. V1191

Planimetrie

Localizzazione

Recensioni

Scrivi la tua recensione

Voto:

Affidaci l'incarico e ci penseremo noi.

call

CHIAMACI ORA

L'immobile è stato aggiunto ai preferiti.
arrow_upward