Agenzia Mondo Casa

call 04641982038 location_on Piazza Rosmini, 4 Rovereto (Trentino-Alto Adige) mail info@mondocasa.biz

4 o più locali a Brentonico

location_on Via G. Mazzini, 22 - Brentonico (Trentino-Alto Adige)

€ 200.000


Riferimento: V1195

Dettagli

Tipologia: 4 o più locali
Tipo contratto:
Vendita
Città: Brentonico
Indirizzo: Via G. Mazzini, 22
Locali: 10
Superficie: 354
Camere: 6
Anno: 1950
Bagni: 5
Stato immobile: Buono
Piano: -

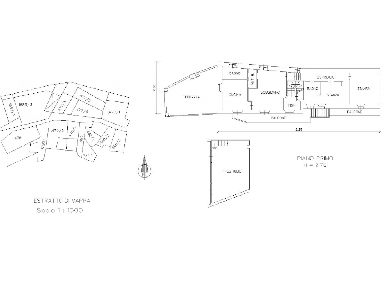
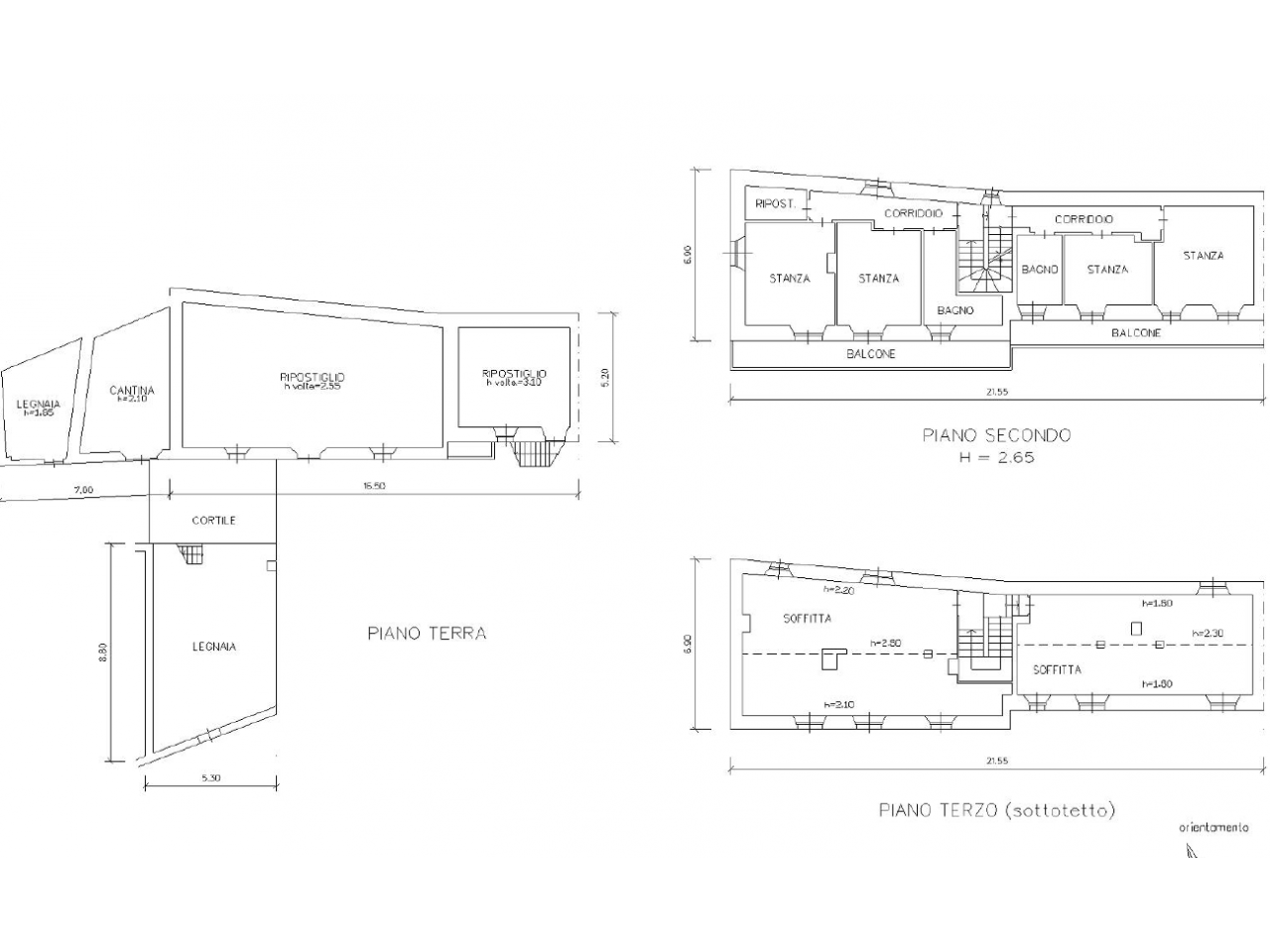
Descrizione

Proponiamo in vendita un’ampia porzione di casa con grande potenziale di sviluppo, ideale sia come residenza per una famiglia numerosa sia come operazione immobiliare. L’immobile, grazie alla sua generosa metratura e alla distribuzione degli spazi, offre la possibilità di ricavare fino a quattro appartamenti indipendenti, mantenendo in alternativa l’attuale configurazione come abitazione unica. Attualmente la proprietà dispone di sei camere da letto e cinque bagni, con ambienti ampi e facilmente ridistribuibili. La proposta è completata da un terrazzo, giardino privato, posti auto esterni e cantine. Soluzione versatile, adatta a chi cerca una casa di grandi dimensioni oppure a chi desidera un investimento con ottime prospettive di valorizzazione. RIF: V1195

Planimetrie

Localizzazione

Video

Recensioni

Scrivi la tua recensione

Voto:

Affidaci l'incarico e ci penseremo noi.

call

CHIAMACI ORA

L'immobile è stato aggiunto ai preferiti.
arrow_upward