Agenzia Mondo Casa

call 04641982038 location_on Piazza Rosmini, 4 Rovereto (Trentino-Alto Adige) mail info@mondocasa.biz

4 o più locali a Trento

location_on Via Nazionale, 5 - Trento (Trentino-Alto Adige)

€ 359.000


Riferimento: V1214

Dettagli

Tipologia: 4 o più locali
Tipo contratto:
Vendita
Città: Trento
Indirizzo: Via Nazionale, 5
Locali: 4
Superficie: 100
Camere: 3
Anno: 2007
Bagni: 2
Stato immobile: Ottimo
Piano: 0
Classe Energetica: 59.52

Ambienti

check Giardino
check Box

Descrizione

Nel cuore di Calliano, in un contesto residenziale tranquillo e ben servito, proponiamo in vendita splendido appartamento pronto da abitare, ideale per famiglie o per chi desidera ampi spazi e comfort. L’immobile si distingue per la luminosa zona giorno con cucina e soggiorno open space, perfetto per vivere la quotidianità e accogliere ospiti. La zona notte offre tre camere da letto spaziose, ideali per garantire privacy e relax a tutta la famiglia. A disposizione dell’abitazione troviamo due bagni ben rifiniti, pensati per assicurare praticità e comodità nella gestione degli spazi. Punto di forza della proprietà è il grande giardino di proprietà esclusiva, uno spazio verde riservato dove trascorrere momenti all’aperto, organizzare cene estive o creare un’area giochi per bambini e animali domestici. L’appartamento viene venduto completamente arredato, con arredi curati e funzionali, ed è subito pronto da abitare, rappresentando una soluzione ideale sia come prima casa sia come investimento. A completare l'immobile troviamo un grande garage doppio, utilizzabile sia come posto auto che come cantina vista la grande metratura. Una proposta imperdibile per chi cerca tranquillità, comfort e qualità della vita in una delle zone più apprezzate di Calliano. Rif. V1214

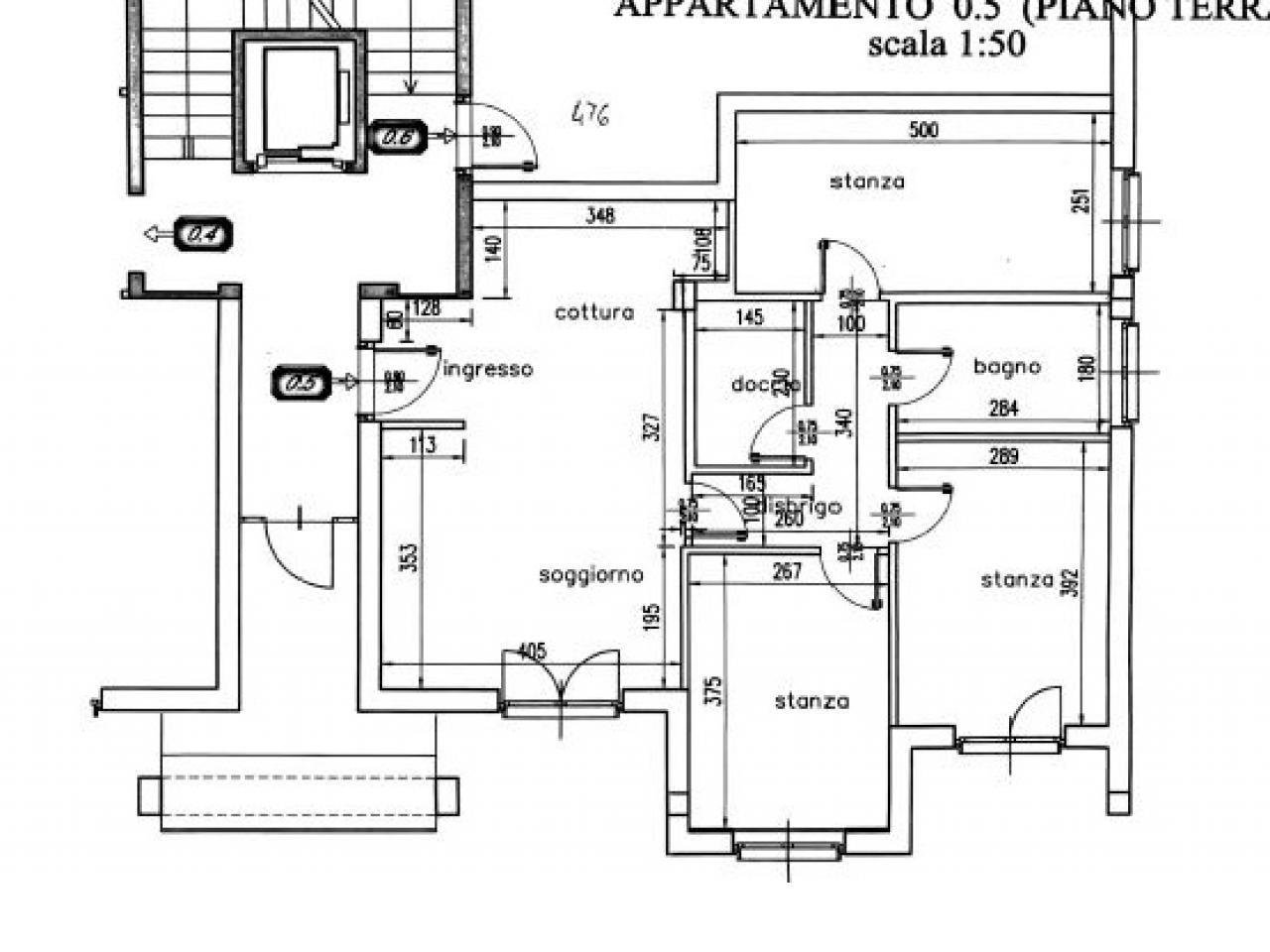
Planimetrie

Localizzazione

Video

Video 360

Recensioni

Scrivi la tua recensione

Voto:

Affidaci l'incarico e ci penseremo noi.

call

CHIAMACI ORA

L'immobile è stato aggiunto ai preferiti.
arrow_upward