Agenzia Mondo Casa

call 04641982038 location_on Piazza Rosmini, 4 Rovereto (Trentino-Alto Adige) mail info@mondocasa.biz

Cantiere a Trento

location_on Trento (Trentino-Alto Adige)

€ 0


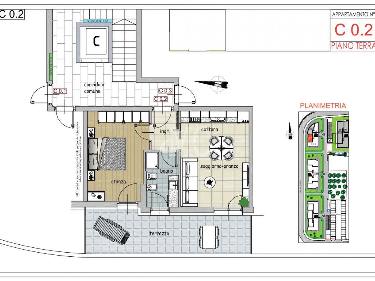
Riferimento: CA 05 Scala C

Dettagli

Tipologia:
Tipo contratto:
Città: Trento
Indirizzo: Trento
Locali: -
Superficie:
Camere: -
Anno: -
Bagni: -
Stato immobile: -
Piano: -

Descrizione

La posizione soleggiata, tranquilla ma soprattutto la qualità, le finiture, il risparmio energetico, la sicurezza fa sì che la nuova Residenza si possa considerare signorile, curata con eleganza mediante l’uso accorto di materiali di primissima qualità. La progettazione si adatta all’impostazione urbanistica dettata dal famoso architetto spagnolo Joan Busquets, che ha voluto trasformare ed inserire nella città questo nuovo importante centro residenziale indicando i principali obbiettivi progettuali. L’intervento edilizio segue dunque quanto previsto dal Piano di lottizzazione progettando il secondo ambito d’intervento costituito dagli edifici C - D ed E. Gli edifici sono orientati tutti in direzione Nord- Sud. I due blocchi situati ad Est (edifici A e B) presentano le testate lungo la via pubblica. La ricerca di unitarietà dell’intervento, peraltro prevista dal Piano di Lottizzazione, ha condotto a pensare, per questi due edifici, una continuità di superfici e di facciate prospettanti la viabilità comunale esistente e nuova. Pur nella omogeneità dei numeri dei piani e delle superfici dei prospetti, il profilo altimetrico dei muri sommitali di facciata risulta variabile così come risultano differenziate le morfologie dei prospetti su ciascun affaccio. L’impianto complessivo dell’insediamento risulta sufficientemente articolato in modo tale da non dare la sensazione monotona del classico edificio in linea ma piuttosto della serie di edifici ciascuno con caratteristiche proprie pur legati da elementi comuni d’architettura. L’area, inoltre si trova in una zona già dotata di viabilità e di tutti i servizi utili, integrate da un nuovo sistema viario, che ha reso il luogo ancora più funzionale.

Localizzazione

Recensioni

Scrivi la tua recensione

Voto:

Affidaci l'incarico e ci penseremo noi.

call

CHIAMACI ORA

L'immobile è stato aggiunto ai preferiti.
arrow_upward